Trilocale in vendita

Palermo, Via Attilio Barbera - Pitrè Alta
€ 160.000
Prezzo aggiornato
3 locali 3 locali
101 Mq 101 Mq
2 bagni 2 bagni

Trilocale in vendita

Palermo, Via Attilio Barbera - Pitrè Alta

Descrizione annuncio

Via Attilio Barbera

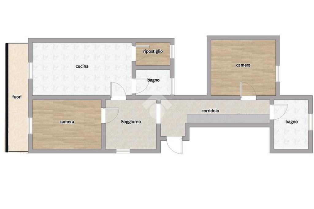
In una tranquilla traversa della zona Pitrè Alta, proponiamo in vendita un appartamento accogliente e ben distribuito, posto al secondo piano di una palazzina di soli tre piani, con poche unità abitative e basse spese condominiali.

L'immobile si presenta in buono stato, pronto per essere abitato sin da subito, ed è la soluzione ideale per chi cerca spazi comodi, luminosità naturale e un ambiente sereno, ma ben collegato ai principali servizi.

L’ingresso conduce a un ampio corridoio che disimpegna gli ambienti principali. La zona giorno è composta da un soggiorno luminoso e una cucina abitabile, entrambi separati e funzionali, con la cucina che si affaccia su un balcone spazioso e vivibile, perfetto per creare un angolo lavanderia o per rilassarsi all'aperto.

La zona notte offre una camera matrimoniale tranquilla e silenziosa, una seconda camera comoda con accesso diretto al balcone, due bagni finestrati (uno con vasca e uno con doccia) e un comodo ripostiglio, utile per organizzare al meglio gli spazi.

Completa la proprietà, al piano superiore, un ulteriore spazio composto da una cucina abitabile, un servizio e un ampio terrazzo, ideale per vivere momenti all’aperto, organizzare cene con amici o semplicemente godersi le giornate in totale relax.

L’appartamento gode di una doppia esposizione, che garantisce ottima luminosità durante tutto il giorno e una buona ventilazione naturale. Gli ambienti risultano ben proporzionati e facilmente arredabili, rendendo questa casa perfetta sia per famiglie che per giovani coppie.

Situato in una zona in crescita, ben servita da mezzi pubblici, scuole, supermercati e tutti i principali servizi, l’immobile rappresenta un’ottima opportunità anche per uso investimento.

È possibile visionare l'immobile previo appuntamento telefonico.
Contatti:
Telefono fisso: 091.652.60.91
WhatsApp: 392.414.37.34
Email:


Il nostro franchising, su richiesta, offre ai propri clienti un consulente dedicato per la mediazione creditizia e assicurativa. Contattateci per una consulenza gratuita, per scoprire la soluzione più adatta alle vostre esigenze

Mostra tutto

Nelle vicinanze

Trasporto pubblico Trasporto pubblico
Ex Stazione Uditore
Ex Stazione Uditore
2,1 Km
Palazzo Reale - Orleans
Palazzo Reale - Orleans
2,2 Km
Pitrè Ovest
Pitrè Ovest
90 m
Pitrè Est
Pitrè Est
120 m
Pitrè - Scuola Bonanno
Pitrè - Scuola Bonanno
20 m
Ricariche auto elettriche Ricariche auto elettriche
Conad Centro Commerciale Ai Leoni | EnelX
850 m
IONITY Basile Palermo
1,9 Km
Scuole Scuole
Scuola Elementare Giovanni Bonanno
60 m
Scuole
390 m
Scuola Media Statale Antonio Gramsci
500 m
Istituto Tecnico Economico e per il Turismo Pio La Torre
740 m
Euroform
830 m
Farmacia Farmacia
Barone
530 m
Farmacia
930 m
Farmacia Polizzi
950 m
Farmacia Erboristeria Pitrè - Dr. Salvatore Margiotta
960 m
Farmacia Barone
1,1 Km
Ospedali Ospedali
Ospedale dei bambini "Giovanni Di Cristina"
2,4 Km
Ospedale Civico e Benefratelli "G. Di Cristina" e "M. Ascoli"
2,4 Km
Ospedale G. F. Ingrassia
2,5 Km
Azienda Ospedaliera Universitaria Policlinico "Paolo Giaccone"
2,9 Km
Policlinico (Nuove aule)
3,0 Km
Supermercati Supermercati
Conad
610 m
Super Spaccio Alimentare
810 m
Lidl
820 m
Decò
840 m
Fortè Hard Discount
920 m
Negozi Negozi
Panificio Anastasi Salvatore
510 m
Il Salumiere
510 m
Negozi
520 m
Fior di Pane
560 m
D'Amico Outlet
570 m
Bar Bar
Bar
900 m
Cobra
1,1 Km
Facebar
1,9 Km
Lo bianco
2,0 Km
Bar Accardi
2,1 Km
Ristoranti Ristoranti
La Tramontina
630 m
L'Arte della Pizza
640 m
al Pollo Duemila
890 m
Fra Pappina
920 m
Pizzeria Lory e Manu
930 m
Mostra tutto

Caratteristiche

Rif.:
61128390
Piano:
2 di 3 (Piano basso)
Balconi:
1
Terrazzi:
1
Camere da letto:
2
Arredamento:
Assente
Mostra tutto
Prezzo Prezzo
€ 160.000
Rata mutuo Rata mutuo
€ 754 / mese
Spese annue Spese annue
€ 120
Proponi il tuo prezzoProponi il tuo prezzo

Classe Energetica

E
E
E
E
E
E
E
E
E
EP globale non rinnovabile:
79.50 kW h/m² anno
EP globale rinnovabile:
0.00 kW h/m² anno
EP invernale del fabbricato:
EP estiva del fabbricato:
Anno di costruzione:
1967
Riscaldamento:
Autonomo
Tipo impianto:
Ad aria
Tipo alimentazione:
Metano

Prezzo ridotto di €1 (4%%)

Ti interessa visionare l'immobile?

Fissa un appuntamento  Fissa un appuntamento

Richiedi informazioni

Clicca su Leggi per aprire l'informativa
* Questi campi sono obbligatori

Calcola il tuo mutuo

Semplice e senza impegno
Anticipo

( % )
Mutuo

( % )

pochi semplici passi

inserisci i tuoi dati
Questionario completato
Grazie per aver richiesto un appuntamento senza impegno con un nostro Consulente del Credito e Assicurativo.

Hai inserito correttamente tutti i dati necessari e a breve riceverai una e-mail con un link da convalidare per inviare i tuoi dati.
Affiliato
L'Emiro D.I.
Via Giuseppe Pitrè, 96/A 90135 Palermo (PA)

Il nostro staff


  • Michael Pedivellano
    Responsabile

  • Antonino Arcara
    Affiliato

  • Rita Argano
    Coordinatrice
Via Giuseppe Pitrè, 96/A 90135 Palermo (PA)
Zona: Pitrè-Perpignano Alta-Boccadifalco-P.Ridente-Baida
Mostra su mappa
Orari: Da Lunedì a Venerdì dalle 9:00 alle 13.00 - dalle 15.30 alle 20.00 Sabato dalle 09:00 alle 13:00 e dalle 16:00 alle 19:00
Affiliato
L'Emiro D.I.
Via Giuseppe Pitrè, 96/A 90135 Palermo (PA)

2026 Tecnocasa Franchising S.p.A. - P. IVA 08365160152 - Via Monte Bianco 60/A 20089 Rozzano (MI). Ogni agenzia ha un proprio titolare ed è autonoma. Privacy policy | Policy utilizzo | Cookie policy