Trilocale in vendita

Palermo, Via Tasca Tanza - Pitrè Alta
€ 117.000
3 locali 3 locali
70 Mq 70 Mq
1 bagno 1 bagno

Trilocale in vendita

Palermo, Via Tasca Tanza - Pitrè Alta

Descrizione annuncio

Via Tasca Lanza

LOCATO FINO AD APRILE 2027

LOCATO A 5400 EURO ANNUI

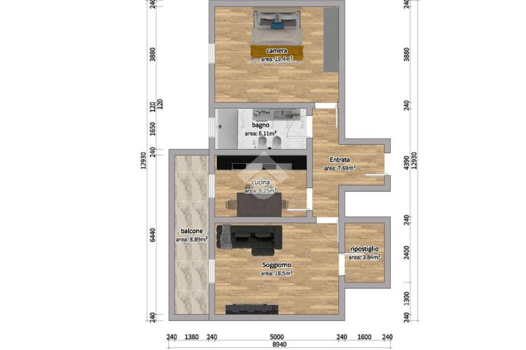
Nel cuore di Pitrè Alta, a Palermo, si propone in vendita un appartamento signorile di 70 mq, situato al terzo piano di un edificio dotato di ascensore.

L'immobile, costruito nel 1972 e ristrutturato nel 2000, offre un ambiente accogliente e funzionale. La zona giorno si compone di un luminoso soggiorno con accesso diretto al balcone, ideale per momenti di relax all'aperto. La cucina, separata, è perfetta per chi ama cucinare. La zona notte include una spaziosa camera da letto, mentre il bagno è dotato di tutti i comfort necessari.

Completa la proprietà un comodo posto auto, una risorsa preziosa in città. Questa soluzione abitativa rappresenta un'opportunità interessante per chi cerca un'abitazione in una zona tranquilla ma ben collegata al centro di Palermo.

È possibile visionare l'immobile previo appuntamento telefonico.


Contatti:
Telefono fisso: 091.652.60.91
WhatsApp: 392.414.37.34

Email:


Il nostro franchising, su richiesta, offre ai propri clienti un consulente dedicato per la mediazione creditizia e assicurativa. Contattateci per una consulenza gratuita, per scoprire la soluzione più adatta alle vostre esigenze.

Mostra tutto

Nelle vicinanze

Trasporto pubblico Trasporto pubblico
Ex Stazione Uditore
Ex Stazione Uditore
1,8 Km
Palazzo Reale - Orleans
Palazzo Reale - Orleans
2,2 Km
Portello/Zisa
Portello/Zisa
40 m
Emiri Ovest
Emiri Ovest
280 m
Tascalanza - Portello
Tascalanza - Portello
10 m
Ricariche auto elettriche Ricariche auto elettriche
Conad Centro Commerciale Ai Leoni | EnelX
1,2 Km
IONITY Basile Palermo
2,1 Km
R.Star Concessionaria | EnelX
2,8 Km
Scuole Scuole
Scuola Elementare Giovanni Bonanno
290 m
Scuole
320 m
Istituto Tecnico Economico e per il Turismo Pio La Torre
460 m
Istituto Comprensivo Statale "Antonio Ugo"
530 m
Scuola Media Statale Antonio Gramsci
800 m
Farmacia Farmacia
Barone
800 m
Farmacia Erboristeria Pitrè - Dr. Salvatore Margiotta
960 m
Farmacia Polizzi
1,1 Km
Mancino
1,1 Km
Farmacia Barone
1,2 Km
Ospedali Ospedali
Ospedale dei bambini "Giovanni Di Cristina"
2,4 Km
Ospedale Civico e Benefratelli "G. Di Cristina" e "M. Ascoli"
2,5 Km
Ospedale G. F. Ingrassia
2,8 Km
Azienda Ospedaliera Universitaria Policlinico "Paolo Giaccone"
3,0 Km
Supermercati Supermercati
Supermercati
810 m
Conad
810 m
Lidl
1,1 Km
Super Spaccio Alimentare
1,1 Km
Md
1,2 Km
Negozi Negozi
Panificio Anastasi Salvatore
550 m
Il Salumiere
770 m
Negozi
770 m
D'Amico Outlet
860 m
Fior di Pane
860 m
Bar Bar
Cobra
760 m
Bar
1,0 Km
Facebar
1,6 Km
Lo bianco
1,8 Km
Il bacio nero
1,9 Km
Ristoranti Ristoranti
L'Arte della Pizza
680 m
La Tramontina
910 m
Fra Pappina
920 m
Al Cerino D'Oro
1,2 Km
Pizzeria Lory e Manu
1,2 Km
Mostra tutto

Caratteristiche

Rif.:
61115854
Piano:
3 di 6 con ascensore (Piano medio)
Posti auto:
1
Balconi:
1
Camere da letto:
1
Arredamento:
Assente
Mostra tutto
Prezzo Prezzo
€ 117.000
Rata mutuo Rata mutuo
€ 552 / mese
Spese annue Spese annue
€ 480
Proponi il tuo prezzoProponi il tuo prezzo
Immobile valutato con T·Valuta

Classe Energetica

B
B
B
B
B
B
B
B
B
EP globale non rinnovabile:
121.40 kW h/m² anno
EP globale rinnovabile:
10.20 kW h/m² anno
EP invernale del fabbricato:
EP estiva del fabbricato:
Anno di costruzione:
1972
Riscaldamento:
Assente

Ti interessa visionare l'immobile?

Fissa un appuntamento  Fissa un appuntamento

Richiedi informazioni

Clicca su Leggi per aprire l'informativa
* Questi campi sono obbligatori

Calcola il tuo mutuo

Semplice e senza impegno
Anticipo

( % )
Mutuo

( % )

pochi semplici passi

inserisci i tuoi dati
Questionario completato
Grazie per aver richiesto un appuntamento senza impegno con un nostro Consulente del Credito e Assicurativo.

Hai inserito correttamente tutti i dati necessari e a breve riceverai una e-mail con un link da convalidare per inviare i tuoi dati.
Affiliato
L'Emiro D.I.
Via Giuseppe Pitrè, 96/A 90135 Palermo (PA)

Il nostro staff


  • Michael Pedivellano
    Responsabile

  • Antonino Arcara
    Affiliato

  • Rita Argano
    Coordinatrice
Via Giuseppe Pitrè, 96/A 90135 Palermo (PA)
Zona: Pitrè-Perpignano Alta-Boccadifalco-P.Ridente-Baida
Mostra su mappa
Orari: Da Lunedì a Venerdì dalle 9:00 alle 13.00 - dalle 15.30 alle 20.00 Sabato dalle 09:00 alle 13:00 e dalle 16:00 alle 19:00
Affiliato
L'Emiro D.I.
Via Giuseppe Pitrè, 96/A 90135 Palermo (PA)

2025 Tecnocasa Franchising S.p.A. - P. IVA 08365160152 - Via Monte Bianco 60/A 20089 Rozzano (MI). Ogni agenzia ha un proprio titolare ed è autonoma. Privacy policy | Policy utilizzo | Cookie policy